一、概述:
分体壁挂式氧化锆氧量分析仪、ZO-5/TB120壁挂式分体氧化锆氧量分析仪氧量探头传感器、氧化锆探头、氧化锆氧量分析仪、氧化锆烟气氧量分析仪、氧化锆探头氧量分析仪、氧化锆氧探头检测器、氧化锆氧分析仪转换器、是近年发展起来的测氧仪器,因其具有结构简单、维护方便、反应速度快、测量范围广等特点,氧化锆氧探头检测器、氧化锆氧分析仪转换器、分体壁挂式氧化锆氧量分析仪应用于电力、冶金、供暖、建材、电子等部门,分析工业锅炉及窑炉中烟气的氧含量,燃烧效率,节约能源,减少环境污染。
分体壁挂式氧化锆氧量分析仪、ZO-5/TB120壁挂式分体氧化锆氧量分析仪氧量探头传感器、氧化锆探头、氧化锆氧量分析仪由转换器和检测器(俗称氧探头)组成,在检测器的元件氧化锆浓差电池上,采用了纳米材料和的生产工艺,在电极涂层上添加抑制电极老化的添加剂。
分体壁挂式氧化锆氧量分析仪、ZO-5/TB120壁挂式分体氧化锆氧量分析仪氧量探头传感器、检测器采用直插式探头结构,不需取样系统,能及时反映锅炉内燃烧状况,如与自控装置配合使用,可地控制燃烧状况。转换器采用单片机化设计,汉字液晶显示,使数据显示、功能控制更具有人性化;氧化锆氧探头检测器、氧化锆氧分析仪转换器、可与各类型DCS数据接入设备连接。使仪表的操作变的简单,容易掌握。具有以下特点:
1.可以替换其它厂家氧量分析仪。
2.大屏幕蓝底白字LCD显示。
3.全中文操作菜单(产品可以提供英文菜单)。
4.氧量量程0-25%内自由设定(低量程0-5%)。
5.温度采用PID控温,恒温点700℃和750℃(可现场选择)。
6.可设置氧量上、下限报警指示,温度上、下限报警指示。
7.本底电势一键校正。
8.可用标准气在线校准。
9.4-20mA标准电流输出与主电路光电隔离,可直接远传进入DCS系统。
10.多种故障信息提示。
二、工作原理:
分体壁挂式氧化锆氧量分析仪、 ZO-5/TB120壁挂式分体氧化锆氧量分析仪氧量探头传感器、氧化锆探头、氧化锆氧量分析仪氧化锆是一种高温电解质浓差电池,在数百度的高温环境下,具有能产生氧离子迁移的导电性能,由于被测气体(烟气或其它气体)与参比起体(空气或其它气体)在氧化锆两侧铂电极的氧分压不同,在两极间有**数量的氧离子迁移而产生了氧浓差电势,其电势值与氧浓度的关系,可以用能斯特(Nernst)公式来表示:
E=RT/4F×LnP1/P2
式中:E—氧浓差电势(V)
R—理想气体常数(8.314J/moLK)
T—温度值(K)
F—法拉第常数(96500c/moL)
P1—参比气体分压(空气)
P2—被测气体分压
变送器把所测量出的数据,经单片机计算转换,将氧含量在液晶屏上显示出来,同时转换成电流信号供计算机或记录仪使用。
三、技术参数:
量程: 0.01~25.0%O2(量程从5.00%-25.00%内自由设置)
输出信号: 4 ~20mA 负载电阻≤500Ω 隔离
重复性: 满量程的±0.5%
基本误差: ≤±2%(满量程)
稳定性: ≤±1%(仪器连续检定4h)
响应时间: 当标准气体从检测器入口引入时计,5秒内达到90%的响应
环境温度: 检测器 -10℃~80℃ 转换器 0℃~40℃
电源及功耗:电源220±10%VAC,功耗大为150W
样气温度: ≤700℃(700℃以上协商供货)
样气压力范围:-500~+500mmH2O
检测器长度: 0.4m;0.8m;1.0m;1.2m;(其他长度可根据用户要求生产)
四、 检测器的构造:
分体壁挂式氧化锆氧量分析仪、ZO-5/TB120壁挂式分体氧化锆氧量分析仪氧量探头传感器、检测器由防尘装置、氧化锆管、加热炉、热电偶、气体导管、接线盒以及壳体等主要部件组成。整个装置采用全封闭型结构,以增加整个装置的密封性能。对高粉尘的检测环境,为达到过滤效果,加装了多孔陶瓷过滤器。
分体壁挂式氧化锆氧量分析仪、ZO-5/TB120壁挂式分体氧化锆氧量分析仪氧量探头传感器、检测器内的氧化锆管是**元件 ,属陶瓷易碎品,运输和安装使用过程中应避免剧烈震动,以免损坏。检测器内加热炉的作用是提供氧化锆元件正常工作所需的温度,在工艺上作了处理。因检测器本身带有加热装置,从而在低于700℃的环境中能正常工作。
检测器的外形和尺寸见下图:

五、 检测器的现场安装条件:
5.1氧量检测器的现场安装条件
避开震动场合;环境温度要在仪器规定范围内;接线盒要避开高辐射热源;尽可能避开腐蚀性气体;要有足够的工作空间;
5.2 取样点的位置选择
取出的气样能快速反映工艺状态的变化情况。
为避免SO2 的冷凝,取样点气体温度应高于300℃,其范围为300—600℃。
取样点的温度、压力、流量等参数不应变化太大。
取样探头的长度应达到烟道直径的1/3。切忌在管道、烟道底部开口取样。
取样点的附近炉堂、烟道应无泄漏,否则将造成测量误差。
要选择在易于维护、检修的地方。
5.3 氧量检测器的安装
预先加工好带法兰的设备短接管,孔径为Φ76,长度约为400mm。按要求选好取样位置(炉壁或管道),开一个Φ76 的孔,将短接水平焊接到炉壁上,焊接时要保证焊接处不漏气。把检测器插入短接管中,接管法兰与检测器法兰之间垫上2—4mm 厚的石棉垫,旋紧4 个螺栓,使其不漏气即可。

注意: 新建炉膛或烟道要等几次烘炉干燥后再安装氧探头,否则,过于潮湿的烟气可能降低。
由于探头的参比气是靠空气自然对流提供的,探头须水平安装, 探头端部防护套管的缺口位置(可调整方向)也应垂直向下,以防积灰.
六、 转换器安装尺寸:
盘装横式表:外形尺寸160*80mm,开孔尺寸152*76mm
盘装竖式表:外形尺寸80*160mm,开孔尺寸76*152mm
盘装方式表:外形尺寸160*160*150mm,开孔尺寸152*152mm
盘装方式表:外形尺寸144*144*150mm,开孔尺寸138*138mm
墙挂式表: 外形尺寸260*200*100mm
七、 仪器接线示意图:
7.1.锆头信号引线用RVVP2×1.0屏蔽二芯电缆线
7.2.热电偶选用K分度号KX-G型2×1.0屏蔽二芯补偿导线
7.3.加热器选用RVV2×1.5二芯电缆线


注意:锆头信号线、电偶导线要与加热器线分开走线。
八、 操作说明:
8.1 开机
打开电源,二**钟后仪器显示如下:
当温度达到700℃后,仪器稳定一小时以上进行下列设置
注意:设备,出厂时已经调试校验好,不需要做**设置,
当设备使用一段时间后,确需校准时,可按照如下方法校准设置。
8.2参数设置与校正:
8.2.1 本底自动校正:
将标气入口的密封螺钉拧下,通入空气(流量:200-300ml/min),或将氧探头直截放在空气中,待数据稳定后按 “设置”键进入主菜单,按“向上” “向下”键将光标选中“氧量参数校正”菜单, 按 “认确”键进入校正子菜单,按“向上” “向下 ”键将光标选中“本底自动校正”菜单,按 “确认”键,本底自动校正后,按 “返回”键返回测量状态。氧量显示20.6左右即可。 再将标气入口的密封螺钉拧上。
注意:此步骤在每次更换探头或变送器时,须进行本底校正。
8.2.2标气自动校正:
将标气入口的密封螺钉拧下,通入标准气(一般选用5%左右的氮中氧,流量:200-300ml/min),待数据稳定后,按 “设置”键进入主菜单,按“向上 ” “向下”键将光标选中“氧量参数校正”菜单, 按 “确认”键进入校正子菜单,按“向上” “向下”键将光标选中“标气自动校正”菜单,按 “确认”键进入校正进入校正页面,按“向上 ” “向下”键将数据修正到和标准气值相同,按 “确认”键完成标气校正。按 “返回”键返回测量状态。再将标气入口的密封螺钉拧上。
8.2.3 氧量上限报警值:
按 “设置”键进入主菜单,按“向上 ” “向下 ”键将光标选中“氧量上限报警值”菜单, 按 “确认”键进入调整页面,按“向上 ” “向下”键调整氧量上限数据,按 “确认”键完成调整,按 “返回”键返回测量状态。
8.2.4 氧量下限报警值:
按 “设置”键进入主菜单,按“向上 ” “向下”键将光标选中“氧量下限报警值”菜单, 按 “确认”键进入调整页面,按“向上 ” “向下 ”键调整氧量下限数据,按 “确认”键完成调整,按 “返回”键返回测量状态。
8.2.5 温度上限报警值:
按 “设置”键进入主菜单,按“向上 ” “向下 ”键将光标选中“温度上限报警值”菜单, 按 “确认”键进入调整页面,按“向上 ” “向下 ”键调整温度上限数据,按 “确认”键完成调整,按 “返回”键返回测量状态。
8.2.6 温度下限报警值:
按 “设置”键进入主菜单,按“向上 ” “向下 ”键将光标选中“温度下限报警值”菜单, 按 “确认”键进入调整页面,按“向上 ” “向下”键调整温度下限数据,按 “确认”键完成调整,按 “返回”键返回测量状态。
8.2.7 氧量量程设置:
按 “设置”键进入主菜单,按“向上” “向下 ”键将光标选中“氧量量程设置”菜单, 按 “确认”键进入调整页面,按“向上 ” “向下”键调整氧量量程数据(量程从5%-25%内自由设定),按 “确认”键完成调整,按 “返回”键返回测量状态。4-20mA电流输出将自动和量程对应。
注意:出厂量程一般默认设置为0-25%。
8.2.8 恒温温度设置:
按 “设置”键进入主菜单,按“向上 ” “向下”键将光标选中“恒温温度设置”菜单, 按 “确认”键进入调整页面,按“向上” “向下 ”键调整恒温温度值(恒温点700℃和750℃两档选择),按 “确认”键完成,按 “返回”键返回测量状态。※注意:出厂恒温点一般默认设置为700℃。
8.2.9 温度报警控制:
按 “设置”键进入主菜单,按“向上 ” “向下 ”键将光标选中“温度报警控制”菜单, 按 “确认”键进入调整页面,按“向上” “向下”键选择报警“开”或“关”,按 “确认”键完成,按 “返回”键返回测量状态。
8.2.10氧量报警控制:
按 “设置”键进入主菜单,按“向上 ” “向下 ”键将光标选中“氧量报警控制”菜单, 按 “确认”键进入调整页面,按“向上” “向下 ”键选择报警“开”或“关”,按 “确认”键完成,按 “返回”键返回测量状态。
九、贮存
仪器在仓库存放时,应包装完好,存放温度为0~40℃,相对湿度不大于85%,没有强腐蚀性气体。
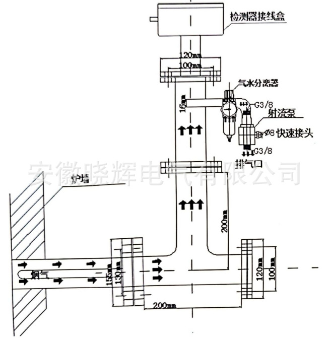
十、高温型检测器的原理及系统组成:
ZO-5/TB120壁挂式分体氧化锆氧量分析仪氧量探头传感器、高温型检测点的气体温度可达0-1400℃,高温型是采取抽气或正压自喷的方式,将炉气引入减温器装置内,经扩容、减压、降温后使其实际温度降至600℃以下,从而实现对高温气体的检测。
高温型检测器原理图如下:

十一、产品照片:





















